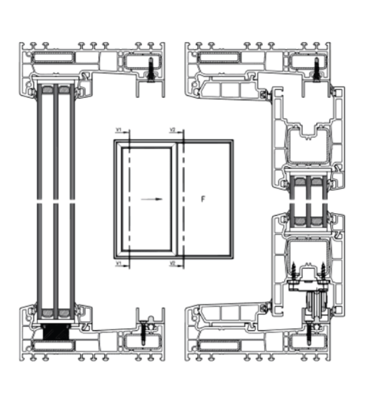
La evolución de la CORREDIZA. Sistema corredizo fijo – móvil.
Diseñada para proyectos exigentes con climas extremos y grandes presiones de viento. Asegura la máxima hermeticidad y estanquidad.
Sistema de herraje con puntos de cierre activos en el encuentro central.
Movimiento de cierre especial de la hoja en sentido transversal con respecto al perfil de marco. Burletería post co-extruida de PVC.
Permite cubrir grandes luces con hojas de hasta 3.60 metros de altura y hasta 3 metros de ancho, con un peso de hasta 400kg.
Con doble o triple vidriado hermético de hasta 42 mm.
Función soft-open y soft-close, brindando mayor confort y seguridad de uso.

Hoja Evolution

Poste

Marco

Cortes horizontales

Cortes verticales
